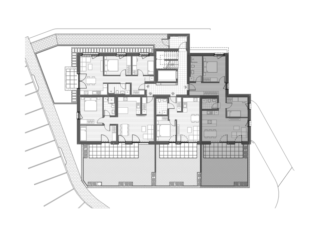
3-sobno
D.1
Stanovanje s Teraso113,8 m2
245.460,00 €
- Stavba: D
- Nadstropje: P
- Sobno: 3-sobno
Trisobno stanovanje s teraso v visokem pritličju.
Ključne prednosti:
✔ Vila blok – manjša, ekskluzivna soseska brez nadaljnje gradnje
✔ Nadstandardna gradnja – kakovostni materiali in premišljeni tlorisi
✔ Toplotna črpalka – sodobno ogrevanje za nižje stroške
✔ Sončna lega – veliko naravne svetlobe skozi ves dan
✔ 1,5 km do centra in hiter dostop do avtoceste
✔ Vzorčna stanovanja – možnost ogleda ter sprehoda po soseski virtualno v naših poslovnih prostorih.

- 1. Predprostor
- 11,9 m2
- 2. Kopalnica
- 6,3 m2
- 3. Spalnica
- 12,3 m2
- 4. Wc
- 3,5 m2
- 5. Otroška soba
- 9,0 m2
- 6. Dnevno-bivalni prostor
- 26,3 m2
- 7. Terasa
- 40,3 m2
- POVRŠINA STANOVANJA:
- 109,6 m2
- 8. Shramba
- 4,2 m2
- SKUPNA POVRŠINA:
- 113,8 m2
Prvi v Evropi vam omogočamo ogled soseske in stanovanja v virtualni resničnosti. Oglejte si tudi popolnoma opremljena vzorčna stanovanja v soseski Dravski Kristali ali Novi Vrtovi.
Sanitarna oprema kopalnic ni vključena v ceno, kar vam omogoča popolno prilagoditev prostora vašim željam in potrebam.
Kupcem lahko stanovanje tudi opremimo, samo z sanitarno opremo ali v kompletu, že za 11.999€ v garsonjeri, 2 sobno opremimo za 12.999€, 3 sobno za 17.999€ ter 4 sobno za 19.399 €.
Vzorčna Stanovanja Oprema Stanovanj